Manuel du conducteur

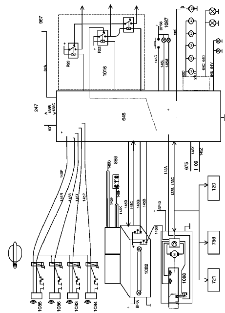
120 - Calculateur d'injection
247 - Tableau de bord
645 - Unité Centrale Habitacle
675 - Contacteur de pédale d'embrayage
721 - Calculateur de système antiblocage des roues
756 - Calculateur airbag
886 - Antennes main-libre
967 - Avertisseur sonore
1016 - Boîtier Fusibles/Relais
1087 - Bouton poussoir de démarrage
1082 - Lecteur de carte RENAULT
1083 → 1086 - Capteurs de présence
1088 - Verrou électrique de colonne de direction
1109 - Capteur de point mort de boîte de vitesses
Véhicule sans clé : Modes dégradés
Toit ouvrantFrein de parking assisté
Serrage du frein de parking assisté
Mode manuel
Tirez et relâchez la palette 1.
Mode automatique (suivant pays)
Le frein de parking assisté assure
l'immobilisation automatique du
véhicule lors de l'arrêt du moteur
par appui sur le bouton de dé ...
Diagnostic "Système d'alimentation en carburant"
MOTEUR V4Y
Ce diagnostic consiste à surveiller en permanence les dérives de richesse au
travers des valeurs adaptatives
(apprentissage) de la régulation de richesse.
CONDITIONS DE TEST
Ces conditions sont remplies par un cycle de roulage permettant l'entrée en
r&e ...
Colonne de direction
OUTILLAGE SPECIALISE INDISPENSABLE
Dir. 1594 Cale de direction
Mettre le véhicule sur un pont à deux colonnes.
Placer les roues du véhicule droites.
Déverrouiller la colonne.
DEPOSE
Verrouiller le calculateur d'airbag à l'aide d'un outil
de diagn ...
www.rensatis.com © 2026